Darda, TOP LOKACIJA, 1. kat, 37.24 m2

Cijena: 2.200,00 €
ID oglasa: 103624

Osnovni podaci

Lokacija Osječko-baranjska, Darda, Darda
Tip stana u stambenoj zgradi
Stambena površina 42,60 m²
Broj etaža Jednoetažni
Broj soba 2-sobni
Kat 1. kat
Broj WC-a 1
Ukupni broj katova u zgradi 1

Opis

Na atraktivnoj lokaciji sami centar Darde, u izgradnji je zgrada u kojoj svaki stan ima svoje parkirno mjesto, te je u blizini trgovina, javnog prijevoza i caffe barova.

Projekt se sastoji od jedne zgrade s prizemljem i 1. katom, na svakoj etaži je smješteno 8 stanova, visokog standarda i opremljenosti, kao i njihovi prateći sadržaji.

Stanovi su veličine od 31 m2 do 64 m2 te raspolažu s jednom spavaćom sobom i dodatnim sadržajem. Svakom stanu je predviđeno jedno parking mjesto. Stanovi u prizemlju raspolažu s terasom i sa privatnim vrtom, dok stanovi na katu imaju balkon.

OPREMA

Svaki stan je opremljen podnim grijanjem. Klizni sistemi i prozori su od visokokvalitetnih PVC profila, vrhunske zvučne izolacije i protuprovalne zaštite, ostakljeni termo izolacijskim staklom. Unutarnja su vrata modernog dizajna. Kupac ima mogućnost izbora ugradnje parkata ili keramike.

TEHNIČKI OPIS

KONSTRUKCIJA

- stanovi odmaknuti od prometnice više od 16 m
- osiguran pristup invalidnim osobama na razini prizemlje u oba ulaza
- konstrukcija zgrade je zidana, sa AB ojačanjima i monolitnim AB pločama
- komforno stubište, visina stuba 15 cm, širina gazišta 33 cm
- na parkiralištu je izvedena priprema za punjenje električnih automobila
- ravni krov je izoliran sa 25 cm toplinskom izolacijom

FASADA

· ETICS sustav s 15 cm toplinskom izolacijom

GRIJANJE, TOPLA VODA I HLAĐENJE

- Podno grijanje instalirano u cijelom stanu
- Spremnik potrošne tople vode
- grijanje i hlađenje je preko dizalica topline, sa unutarnjim fan coilerima

ELEKTRO INSTALACIJE

- elektrooprema visoke kvalitete renomiranih dobavljača
- elektro brojila smještena su izvan objekta
- u svim sobama predviđene su antenske utičnice

PODNA OBLOGA

PARKET

- kvalitetan troslojni parket većih dimenzija

KERAMIKA

- kvalitetne pločice sa mogućnošću biranja

STOLARIJA

- PVC stolarija renomiranog proizvođača
- staklene stijene
- ostakljenje je IZO staklo
- toplinski izolirane aluminijske eslingen rolete
- komarnici na svim prozorima

KUPAONICE

- Kupaonice su opremljene prvoklasnom opremom ugradbeni vodoktolići, školjka, umivaonik, tuš kada renomiranih proizvođa

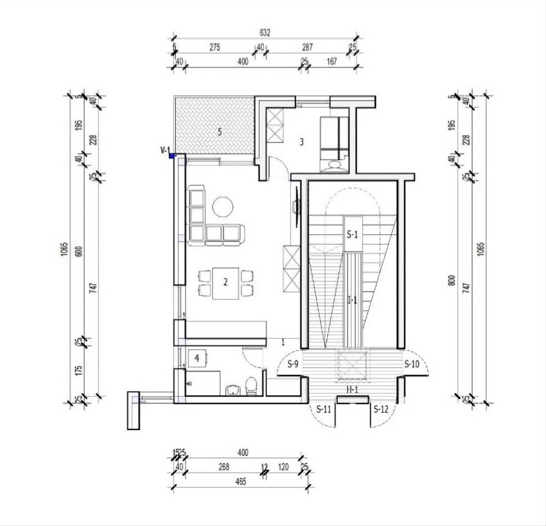
U ponudi je jednoipolsobni stan s balkonom oznake S-9 na 1.katu zgrade.

Sastoji se od:

- ulaznog prostora i garderobe 2,57 m2
- kupaonice s wc-om 4,69 m2
- dnevnog boravka s kuhinjom i blagovaonom 23,33 m2
- sobe 6,65 m2
- UKUPNO ZATVORENO: 37,24 m2
- balkona 5,36 m2
- SVEUKUPNO S-9: 42,60 m2
Stanu pripada vanjsko parkirno.

Planirani početak gradnje 3/2026. Predviđeni rok završetka gradnje: 10/2027.

Energetski certifikat: A+

Kupac ne plaća agencijsku proviziju.

Lokacija

close
Napomena: prikazana je točna lokacija

Dodatni podaci

Podaci o objektu

  • Novogradnja
  • Gradski vodovod
  • Gradska kanalizacija

Balkon/Lođa/Terasa

  • Balkon

Dozvole i potvrde

  • Građevinska dozvola
Oglas objavljen 22.01.2026. 00:08
Do isteka još 2 godine i 8 mjeseci
Pregleda 138

Slični oglasi Pogledaj sve oglase

Navedite razlog prijave oglasa

Podijeli oglas

Darda, TOP LOKACIJA, 1. kat, 37.24 m2

Darda, TOP LOKACIJA, 1. kat, 37.24 m2

ID oglasa: 103624

Cijena: 2.200,00 €

U usporedbi može biti maksimalno 4 oglasa. Uklonite 1 oglas kako bi dodali novi oglas u usporedbe

PROVJERI OGLASE