Crikvenica samostojeći objekt sa okućnicom i krovnom terasom

Cijena: 499.000,00 €
ID oglasa: 60620

Osnovni podaci

Lokacija Primorsko-goranska, Crikvenica, Crikvenica
Tip stana u kući
Stambena površina 150 m²
Broj etaža -2
Broj soba Garsonijera
Kat Prizemlje
Netto površina 150 m²
Godina izgradnje 2022
Ukupni broj katova u zgradi -2
Energetski razred A
Klima uređaj DA

Opis

EKSKLUZIVNA PRIZEMNICA S KROVNOM TERASOM I POGLEDOM NA MORE – CRIKVENICA

Na izuzetnoj lokaciji iznad glavne plaže u Crikvenici, svega 300 metara od mora i centra grada, prodaje se vrhunski samostojeći objekt koji objedinjuje udobnost modernog doma, luksuzne sadržaje i potpuni mir. Ova prizemnica idealna je za one koji žele biti u srcu događanja, a istovremeno uživati u privatnosti i opuštajućem pogledu na more.

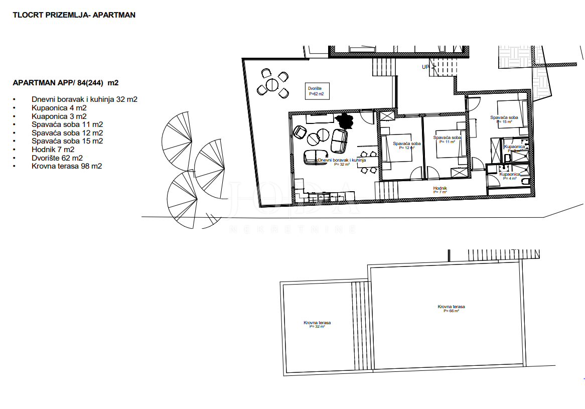
Prostrani trosobni stan s dnevnim boravkom-
Objekt je koncipiran kao funkcionalan trosobni stan s open space dnevnim boravkom, kuhinjom i blagovaonicom, koji odišu elegancijom i prirodnim svjetlom.

Tri spavaće sobe-
Na polukatu se nalaze tri udobne spavaće sobe, uključujući master sobu s vlastitom kupaonicom. Dvije dodatne sobe dijele modernu kupaonicu, što osigurava udobnost za sve članove obitelji i goste.

Krovna terasa 100 m² s pogledom koji oduzima dah-
Najveći adut nekretnine je prostrana krovna terasa s ljetnom kuhinjom, pečenjarom i dnevnim boravkom na otvorenom – savršeno mjesto za uživanje u zalascima sunca, druženjima i opuštanju tijekom toplih mjeseci.

Okućnica i intiman prostor-
U prizemlju se nalazi lijepo uređena okućnica i terasa koja pruža potpunu privatnost – idealno za mirne trenutke u zelenilu.

Dva privatna parkirna mjesta-
U cijenu su uključena dva vlastita parkirna mjesta.

Kvalitetna gradnja s pažljivo biranim materijalima
Vinil podovi – dugotrajni i jednostavni za održavanje
Grohe sanitarije – moderna i pouzdana kupaonska oprema
Samsung kuhinjski aparati s trogodišnjim jamstvom
Daikin klima uređaji – vrhunsko hlađenje i grijanje
Komarnici na svim otvorima
Spremište 17 m² s vlastitom strujom

Objekt je smješten u jednoj od najpoželjnijih zona Crikvenice – u neposrednoj blizini mora, restorana, trgovina, kafića i svih gradskih sadržaja. Ova pozicija idealna je kako za cjelogodišnje stanovanje.

ID KOD AGENCIJE: 6839

Vinko Matejčić, mag.oec
Agent s licencom
Mob: 0959145475
Tel: 051403771
E-mail: [email protected]
www.joda-nekretnine.hr

Josip Šikić, mag.oec
Agent s licencom
Mob: +385 91 890 4694
Tel: +385 51 403 771
E-mail: [email protected]
www.joda-nekretnine.hr

Lokacija

close
Napomena: prikazana je točna lokacija

Dodatni podaci

Podaci o objektu

  • Gradski vodovod
  • Gradska kanalizacija

Balkon/Lođa/Terasa

  • Terasa

Dozvole i potvrde

  • Građevinska dozvola
Oglas objavljen 03.06.2025. 00:00
Do isteka još 2 godine i 7 mjeseci
Pregleda 28

Slični oglasi Pogledaj sve oglase

Navedite razlog prijave oglasa

Podijeli oglas

Crikvenica samostojeći objekt sa okućnicom i krovnom terasom

Crikvenica samostojeći objekt sa okućnicom i krovnom terasom

ID oglasa: 60620

Cijena: 499.000,00 €

U usporedbi može biti maksimalno 4 oglasa. Uklonite 1 oglas kako bi dodali novi oglas u usporedbe

PROVJERI OGLASE