Čižići, Otok Krk, stan u novogradnji 2S+DB, 1.kat

Cijena: 265.000,00 €
ID oglasa: 60833

Osnovni podaci

Lokacija Primorsko-goranska, Dobrinj, Čižići
Tip stana u stambenoj zgradi
Stambena površina 79,01 m²
Broj etaža 2
Broj soba Garsonijera
Kat 1. kat
Netto površina 79,01 m²
Godina izgradnje 2025
Ukupni broj katova u zgradi 2
Energetski razred A+
Klima uređaj DA

Opis

Prodaje se stan smješten na 1. katu luksuzne dvojne stambene zgrade koja se nalazi u samom srcu jednog od najatraktivnijih dijelova otoka Krka, u naselju Čižići, neposredno uz obalu mora.
Zgrada je u fazi novogradnje, a završetak radova planiran je početkom ljeta 2025. godine. Riječ je o zgradi s tri stana, a svaki stan ima svoj zaseban ulaz putem vanjskog stubišta, što omogućava osjećaj privatnosti i udobnosti.

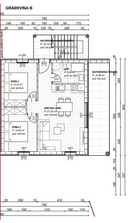
Stan na 1. katu prostire se na 79,01 m². Unutrašnjost stana sadrži dvije spavaće sobe od 10,56 i 10,57 m2, dnevnog boravka površine od 27,57 m², kupaonice (5,04 m²) te terasom i natkrivenim ulazom.
Stan dolazi s jednim parkirnim mjestom, a cijela zgrada je smještena u mirnom, ali veoma atraktivnom dijelu Čižića, koji je posebno popularan tijekom ljetnih mjeseci zbog blizine mora i prirodne ljepote.
Rijetka je prilika pronaći ovakvu nekretninu u prvoj liniji do mora na otoku Krku, koja nudi ne samo udoban život, već i potencijal za odličnu poslovnu priliku u jednoj od najpoželjnijih destinacija na Jadranu.

ID KOD AGENCIJE: 6480

Sara Schneider, mag.ing.logist
Agent s licencom
Mob: 0911930770
Tel: 051403771
E-mail: [email protected]
www.joda-nekretnine.hr

Lokacija

close
Napomena: prikazana je točna lokacija

Dodatni podaci

Podaci o objektu

  • Gradski vodovod

Dozvole i potvrde

  • Građevinska dozvola
Oglas objavljen 06.02.2025. 00:00
Do isteka još 2 godine i 7 mjeseci
Pregleda 31

Slični oglasi Pogledaj sve oglase

Navedite razlog prijave oglasa

Podijeli oglas

Čižići, Otok Krk, stan u novogradnji 2S+DB, 1.kat

Čižići, Otok Krk, stan u novogradnji 2S+DB, 1.kat

ID oglasa: 60833

Cijena: 265.000,00 €

U usporedbi može biti maksimalno 4 oglasa. Uklonite 1 oglas kako bi dodali novi oglas u usporedbe

PROVJERI OGLASE