Upozorenje
Ovaj oglas je neaktivan!
pogledaj slične oglase

Buje, okolica, građevinsko zemljište s građevinskom dozvolom i projektom

Cijena: 270.000,00 €
ID oglasa: 106266

Osnovni podaci

Lokacija Istarska, Buje, Buje
Tip zemljišta Građevinsko
Površina 2.832 m²

Opis

Građevinsko zemljište s građevinskom dozvolom i projektom za luksuznu vilu s bazenom – 16 km od mora

Na prodaju se nudi atraktivno građevinsko zemljište površine 987 m² s dodatnih 1.854 m² zelene površine, smješteno u mirnom i zelenom okruženju . Zemljište je potpuno ravno i pravilnog oblika, idealno za gradnju obiteljske kuće ili luksuzne vile.

Infrastruktura:
Struja i voda nalaze se u krugu od 50 metara, a gradnja se može započeti odmah.

Projekt i dozvola:
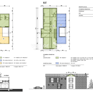
Izdana je građevinska dozvola za izgradnju moderne kuće s bazenom, ukupne stambene površine 348,31 m², koja se sastoji od prizemlja i kata.

Tlocrt prema projektu:

Prizemlje (188,35 m²): prostrani dnevni boravak s kuhinjom i blagovaonom, WC, spavaća soba s vlastitom kupaonicom, tehnička soba, wellness i spa prostorija, te natkrivena i nenatkrivena terasa.

Kat (159,96 m²): tri komforne spavaće sobe, svaka s vlastitom kupaonicom.

U okruženju se nalaze rijetke obiteljske kuće i poznata vinarija Kabola udaljena svega 5 minuta lagane šetnje.
Do Umaga i plaža ima oko 16 km (20 minuta vožnje).

Idealno za investiciju, gradnju luksuzne vile za odmor ili obiteljsku kuću u mirnom i slikovitom okruženju.

Nekretnina je u vlasništvu pravne osobe, na istaknutu cijenu se zaračunava PDV.

ID KOD AGENCIJE: 10919

Vlasta Sečen
Agent s licencom
Mob: +385 98297277
Tel: +385 51 563 800
E-mail: [email protected]
www.vektor-nekretnine.hr

Lokacija

close
Napomena: prikazana je točna lokacija
Oglas objavljen 31.10.2025. 00:00
Do isteka još 2 godine i 7 mjeseci
Pregleda 48

Slični oglasi Pogledaj sve oglase

Navedite razlog prijave oglasa

Podijeli oglas

Buje, okolica, građevinsko zemljište s građevinskom dozvolom i projektom

Buje, okolica, građevinsko zemljište s građevinskom dozvolom i projektom

ID oglasa: 106266

Cijena: 270.000,00 €

U usporedbi može biti maksimalno 4 oglasa. Uklonite 1 oglas kako bi dodali novi oglas u usporedbe

PROVJERI OGLASE