Brzac, zemljište s građevinskom dozvolom! Pogled na more!

Cijena: 250.000,00 €
ID oglasa: 106803

Osnovni podaci

Lokacija Primorsko-goranska, Krk, Brzac
Tip kuće Samostojeća
Stambena površina 575 m²
Broj etaža Prizemnica
Broj soba 1
Netto površina 575 m²
Površina okućnice 0 m²

Opis

Brzac, prodaje se građevinsko zemljište površine 575 m², pravilnog oblika, s građevinskom dozvolom i pogledom na more. Mirna i atraktivna lokacija, idealna za gradnju obiteljske kuće, kuće za odmor ili investicijsku nekretninu.

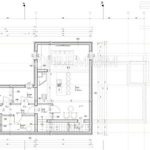
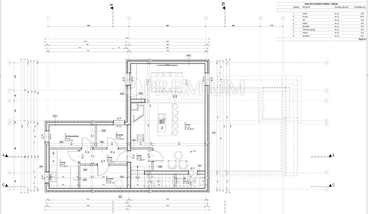
Prema glavnom projektu predviđeno je izvođenje samostojeće obiteljske kuće katnosti podrum, prizemlje i prvi kat, ukupne bruto površine 309,5 m².

U podrumu predviđeni su hodnik, WC, dva spremišta, tehnička prostorija, vešeraj i konoba. U prizemlju predviđeni su ulazni hodnik, stubište, spremište, WC, spavaća soba s vlastitom kupaonicom, dnevni boravak te kuhinja i blagovaonica s izlazom na natkrivenu terasu. Na prvom katu predviđeni su hodnik te tri spavaće sobe, svaka s vlastitom kupaonicom i izlazom na terasu s koje se pruža lijep pogled na more.

Na okućnici je predviđena izgradnja bazena površine 24 m², sunčalište te tri parkirna mjesta.

Udaljenost od mora iznosi približno 2 km.

ID KOD AGENCIJE: 4601

Premium nekretnine Malinska
Mob: +385915474709
Tel: +38551858364
E-mail: [email protected]

Lokacija

close
Napomena: prikazana je točna lokacija

Dodatni podaci

Dozvole i potvrde

  • Građevinska dozvola
Oglas objavljen 04.02.2026. 00:00
Do isteka još 2 godine i 6 mjeseci
Pregleda 63

Slični oglasi Pogledaj sve oglase

Navedite razlog prijave oglasa

Podijeli oglas

Brzac, zemljište s građevinskom dozvolom! Pogled na more!

Brzac, zemljište s građevinskom dozvolom! Pogled na more!

ID oglasa: 106803

Cijena: 250.000,00 €

U usporedbi može biti maksimalno 4 oglasa. Uklonite 1 oglas kako bi dodali novi oglas u usporedbe

PROVJERI OGLASE