ATRAKTIVNO GRAĐEVINSKO ZEMLJIŠTE – KRIŽ CENTAR (BLIZINA ZAGREBA)

Cijena: 79.080,00 €
ID oglasa: 120241

Osnovni podaci

Lokacija Zagrebačka, Križ, Križ
Tip zemljišta Građevinsko
Namjena stambeno
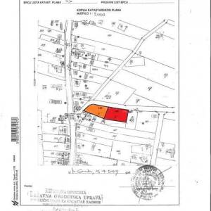
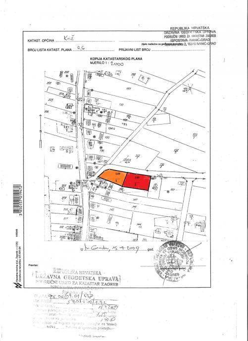
Površina 1.977 m²
Građevinska dozvola DA
vlasnički list DA

Opis

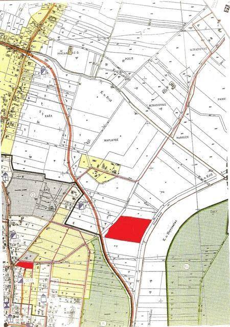
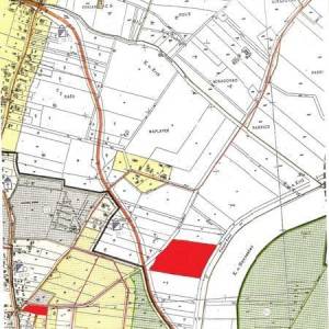
Na prodaju izuzetno atraktivno građevinsko zemljište u samom centru Križa, udaljeno svega 45 km od Zagreba, s prekrasnim otvorenim pogledom prema Moslavačkoj gori.

Ukupne površine 1977 m², zemljište se sastoji od dvije katastarske čestice (149/1 i 149/2, K.O. Križ) i nalazi se unutar građevinskog područja mješovite, poslovne i javne namjene – bez posebnih ograničenja, što ga čini idealnim za investitore.

KLJUČNE PREDNOSTI:
Izdano rješenje o uvjetima građenja
Ukupna površina: 1977 m² (2 čestice)
Građevinsko područje mješovite, poslovne i javne namjene

INFRASTRUKTURA:
Dva bunara na parceli
Priključci gradskog vodovoda (vodomjeri na obje čestice)
Sve komunalije uz zemljište

RAZVOJNI POTENCIJAL:
– Pogodno za višestambeni objekt s poslovnim sadržajem
– Mogućnost gradnje više etaža + potkrovlje
– Konfiguracija terena omogućava podrum (dodatna kvadratura / garaže)
– Fleksibilna namjena = više modela monetizacije (prodaja stanova, najam, poslovni prostor)

LOKACIJA:
– 45 km od Zagreba
– 5 minuta do autoceste A3 (Zagreb–Lipovac)
– željeznička povezanost (Zagreb–Vinkovci)
– u blizini nova poduzetnička zona
– kompletna infrastruktura (škola, vrtić, banka, trgovine…)

Vlasništvo uredno, bez tereta.

Lokacija

close
Napomena: Prikazana je približna lokacija

Dodatni podaci

Komunalije

  • Gradski plin
  • Gradski vodovod
  • Gradska kanalizacija
  • Telefon
  • Asfaltni put
  • Struja

Kontakt podaci

Oglas objavljen 20.04.2026. 18:10
Do isteka još 2 godine i 8 mjeseci
Pregleda 19

Slični oglasi Pogledaj sve oglase

Navedite razlog prijave oglasa

Podijeli oglas

ATRAKTIVNO GRAĐEVINSKO ZEMLJIŠTE – KRIŽ CENTAR (BLIZINA ZAGREBA)

ATRAKTIVNO GRAĐEVINSKO ZEMLJIŠTE – KRIŽ CENTAR (BLIZINA ZAGREBA)

ID oglasa: 120241

Cijena: 79.080,00 €

U usporedbi može biti maksimalno 4 oglasa. Uklonite 1 oglas kako bi dodali novi oglas u usporedbe

PROVJERI OGLASE